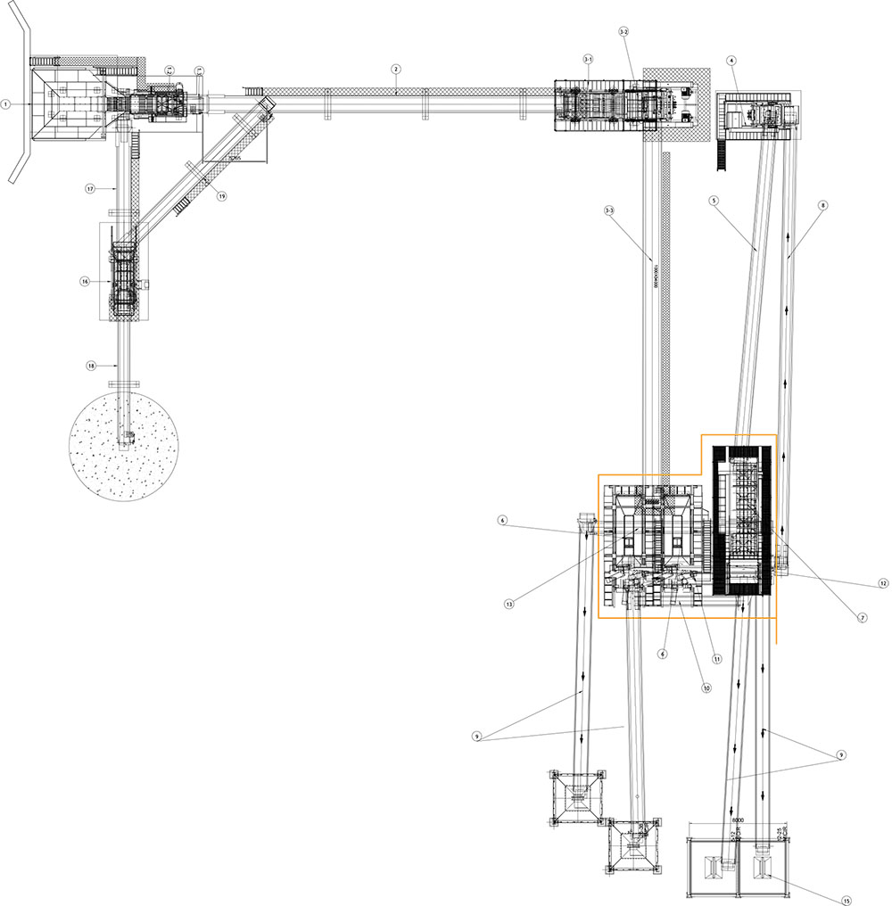
Kırma Eleme Tesisin Ana Makinaları
Primer Kırıcı
Saes 140 lık çeneli kırıcı
Sekonder Kırıcı
APİ 14*14
Tersiyer Kırıcı
SAES 130 Tersiyer Kırıcı
Elek Grubu
Tesiste 2 adet 2000*6000 ve 2200*8000
ürün eleği bulunmaktadır.
ürün eleği bulunmaktadır.
Tesisin kapasitesi 500 ton/sa‘dır. Tesisin kuruluş dizaynı asfalt, beton, PMT tesislerine istenilen ebatta ürün temini edebilmektedir.








