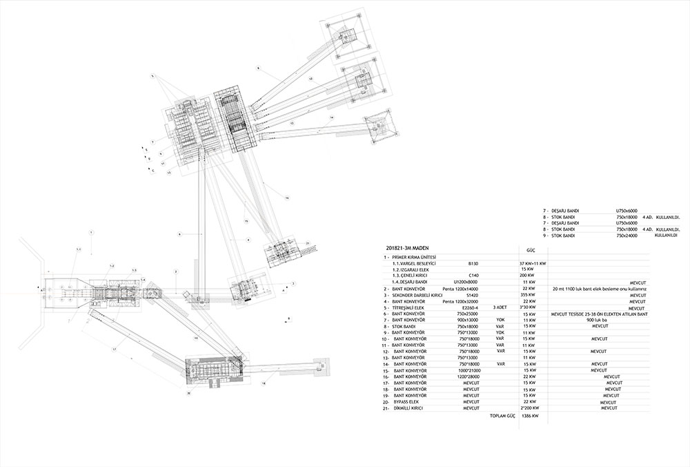
Kırma Eleme Tesisin Ana Makinaları
Primer Kırıcı
Saes 140 lık çeneli kırıcı 1 adet
Sekonder Kırıcı
Saes 14*20 sekonder kırıcı
Tersiyer Kırıcı
1000’lik Dikmilli – 1 adet
Elek Grubu
3 adet 2000*6000 elek vardır.
Tesisin kapasitesi 500 ton/sa‘dır.








